「計量計測データバンク」サイトマップ measure and measurement data bank of saite map
計量計測データバンク ニュースの窓-321-
|
計量計測データバンク ニュースの窓-321-
├
├計量計測データバンク ニュースの窓-321-
├高市早苗氏、村山富市首相に「先の大戦、勝手に謝っては困る」1年生議員のときに追及(1994年)

1994年10月12日の衆院予算委員会で、自由改革連合を代表して高市早苗氏が質問に立ち、村山富市首相に対し、先の大戦について国民的議論がないまま侵略と認定することを批判。「勝手に代表して謝ってもらっちゃ困る」と厳しく追及した。村山首相は翌年、「植民地支配と侵略」への「心からのおわびの気持ち」を表明する首相談話を発表した。
├計量計測データバンク ニュースの窓 目次
├「日本計量新報」今週の話題と重要ニュース(速報版)2025年12月04日号「日本計量新報週報デジタル版」
├「中国で権力の移行が起きている」"独裁"強めた習主席"失脚"あるのか【7月8日(火)#報道1930】|TBS
NEWS DIG
├「日本計量新報」今週の話題と重要ニュース(速報版)2025年11月27日号「日本計量新報週報デジタル版」
├「日本計量新報」今週の話題と重要ニュース(速報版)2025年8 月21日号「日本計量新報週報デジタル版」
├「日本計量新報」今週の話題と重要ニュース(速報版)2025年8 月14日号「日本計量新報週報デジタル版」
├夏至のころの瑞牆山(みずがきやま 標高2,230m) 森夏之
├中国の都市部マンション価格年収60倍が意味すること
├
├Word文章の一太郎ソフ変換、PDFの改行削除と空白を除去ツール
├
├iLovePDF | PDFファンのためのオンラインツール
├真実に迫る賢い情報選択とその方法 夏森龍之介
├
├経済産業省人事異動(2025年11月20日付)計量計測データバンク編集部
経済産業省人事異動(2025年11月20日付)
井上博雄 官房政策統括調整官=商務・サービスグループ担当→商務・サービス審議官兼商務・サービスグループ長。
小林浩史 官房付→官房審議官=重点政策高度化、経済産業政策局担当。
竹田憲 官房調査統計グループ長兼官房政策統括調整官=経済産業政策局担当兼経済産業政策局調査課長兼企業財務室長→官房審議官=経済産業政策局担当兼官房調査統計グループ長
兼 経済産業政策局調査課長兼企業財務室長。
南亮 商務・サービス審議官兼商務・サービスグループ長→辞職。
├人事院が公表する国家公務員の昇進事情(キャリアパス) 計量計測データバンク編集部
├
├建築家 阿部勤「中心のある家」/100年人生 くらしのデザイン
├前川國男邸
├
├愛の名住宅図鑑21:名手・吉村順三が“緻密な愛”で生み出した癒しの空間~「軽井沢の山荘(吉村順三別荘)」(1962年) | BUNGA NET

├
├設計は吉村順三。吉村順三軽井沢邸。軽井沢の山荘

玄関扉にはもう一つ小さな扉がついている
├
├【1時間目】吉村山荘の屋根を見て増沢洵さんは⋯/軽井沢の山荘(前編)/吉村順三の設計手法解析2024-25ダイジェスト(講師:増田奏、鈴木信弘)
├【2時間目】湧き上がるプランと回遊動線の登場/軽井沢の山荘(後編)/吉村順三の設計手法解析2024-25ダイジェスト(講師:増田奏、鈴木信弘)
├【3時間目】吉村障子は存在しない/浜田山の家/吉村順三の設計手法解析2024-25ダイジェスト(講師:増田奏、鈴木信弘)
├【4時間目】吉村事務所の階高の基準は9尺/国際文化会館住宅/吉村順三の設計手法解析2024-25ダイジェスト(講師:増田奏、鈴木信弘)
├【5時間目】開口部はできるだけシンプルに/御蔵山の家/吉村順三の設計手法解析2024-25ダイジェスト(講師:増田奏、鈴木信弘)
├【6時間目】吉村順三の都市型住宅標準動線/南台町の家(方南町の家)/吉村順三の設計手法解析2024-25ダイジェスト(講師:増田奏、鈴木信弘)
├
├【ルームツアー】絶景のビンテージマンションをリノベーション|吉村順三+伊礼智
├伊礼智リノベと吉村順三建築。コピーライター・岡本欣也と語る、新建築・住宅特集にも掲載されたフジタ第2箱根山マンションとは【建築人と創る】
├
├日本の住宅史163~166総集編 近代建築 吉村順三
├日本の住宅史166 近代建築 吉村順三 吉村順三建築展を振り返る
├日本の住宅史179~190総集編 アントニン・レーモンド 建築詳細図譜
├日本の住宅史161~162総集編 昭和時代 坂倉準三
├
├宮脇 檀【VILLA福村】|藤森照信の「日本のモダン建築」20世紀の名作住宅を訪ねる|MODERNLIVING
├【ゆっくり建築家解説】吉村順三
├吉村順三氏設計の軽井沢にあるアトリエ山荘【脇田山荘】に行ってきた!
├山荘に喫茶室をつくる 夏森龍之介(4)
├
├
├軽井沢の山荘1/2(1962)吉村順三をSketchupでつくってみた 前編
├軽井沢の山荘2/2(1962)吉村順三をSketchupつくってみた 後編
├日本の住宅史163 近代建築 吉村順三 軽井沢の山荘
├
吉村順三の軽井沢の山荘
├
吉村順三作品集―1941-1978 (1979年) 新建築社 (1979/03) 寸法: 30.1 x 29.5 x 3.6 cm ※1より
「軽井沢の山荘」の居間から外を見る」写真を見ている。開口が横に長い、おまけに L字型だ。外の木々が直ぐ近くに見える。太い一本の単純な手摺り。むッ、バルコニーの奥行きがない、不思議な感じ。身体が外に出ないゆえに、意識が外部へと浮遊してゆく感覚がある。これは何処からくるのか。開口部が南に向かって、部屋幅いっぱいに取り付けられており、これは切り取りではなく幅いっぱいに外気に意識が持っていかれそうなパノラマ感覚がある。L字型に曲がっているのも、正面の大開口のパノラマのような広がりが、外気との直接な引き込まれ感を作っていると思う。それは部屋いっぱいの開口幅とともに、掃出し窓になっていることにもある。吉村が言っている
『2階に上がってくると、誰でもたいていすぐにその窓前に近寄って行く・・・・そこから見ると、空中に浮かんでいるように感じられるだろう』※3 空中にある浮遊感を体感させる設定なのだ。ここでは身体が外部に出ているわけではない。だから余計に意識」が外部へと浮遊してゆく感じがあるのだ。本当はバルコニー状のものが無い方が、もっとこの高所感・浮遊感は倍増しただろう。しかしそれでは住まいのセオリーから飛び出してしまう。手摺りをつけるだけではまだセオリーから外れている。そこで掃出しといえばバルコニーだから、それを付けよう。ただそれを付けてしまうと、内部にいながらの高所感・浮遊感が薄れてしまう。しかしセオリーは守らないと仮設のようになってしまう。そこで思いついたのが、バルコニーは付けるが外に出るほどの幅のない、高所感・浮遊感が味わえるギリギリにしようと。そこでできたのが、この中途半端に500幅しかないバルコニーとなったのでした。この丸太の無骨な手摺りも、ここにドーンと大きなバルコニーでもかまえている風ではないでしょうか。この感覚が外への導きになっていると思う。もう少し錯覚すれば、この丸太の手摺りの存在感が、あたかもこの居間そのものがバルコニーのように思われてくるのだ。居間にいながら、バルコニーで外を見ているかのような感覚。
『この樹の上で、鳥になったような暮らしのできる家をつくろうと思いついた』(吉村順三)
今回の視点に自分でも驚いている。身体が居間の内部にある時には、部屋に屋根に身体が守られており、安心して安定感の中で意識を樹間に浮遊させ遊ぶことができるのだと。それに対し、屋根のないバルコニーに身体が出た状態は、環境圧とでも言うべき太陽・風・土っぽさ、等々に意識が向かってしまい、安定した空想に遊ぶことが出来ないのではないかというものだった。この日本の住宅建築の原体験=軒下体験とでも言うべきものは、自宅マンションでのバルコニーでも体験可能だ。
私はこのところ「土っぽさ」と言う体験を手がかりに幾つかの住宅建築作品を解読してこれた。軽井沢の山荘でも、敷居に腰掛けてバルコニーに足を投げ出し、樹間に浮遊する意識を想像していた。この山荘の中途半端とも言えるバルコニーは、あまりに不思議なものであった。うまく解説できただろうか。こんなにも細かく、場の設定という建築部品のあり方の微細を捕らえられないと、多くのものを失念してしまうことになる。このことに気付かせてくれた。
注;寸法は全ておおよそのもので、正確ではないですが、理解の手がかりに必要なので使っています。
もう少しあるので、解読して行きます。下の写真はレーモンド時代の吉村j順三担当の、軽井沢にあった「小寺別邸」です。左の内部写真を見ると、屋根型の構造材表し天井に和室が二部屋、欄間は開け放たれ、建具のみで仕切られた。建具を解放すると、ダイナミックな一室空間となります。
これは吉村の矩形スケッチです。

居間の一番低い天井が2121となっています。3階の低いところは1290で、ここが屋根裏部屋で、製図室です。こんな狭い部屋も『鳥になったような暮らしのできる家』※3に懸かっているのでしょうか。限界極小寸法に挑戦していることは確かに思われます。※3よりもっとすごいのは階段を登るとき頭をぶつける高さになっています。設計の限界寸法は1800は無いとだめと言われています。それを遙かに小さい設定です。おまけに頭よけのために斜めに切りかかれており、そのため寝室への入り口が250上がらなければならないことになっています。茶室のような限界寸法と言うことなのでしょうか。
次の断面矩計は実施設計図面の清書版(出版のためのインキング)と思われます。
居間の最低天井高2121はほぼ合っていますが、屋根裏部屋は1477(1291)に増えていますね。故に屋根の勾配が変わっています。※3より 居間からの大開口はh1900w4700位、曲がってw1800位になります。居間最低天井高さは2140となっています。
次の居間の写真では天井の一番低いところの検証を行いました。建具の内法寸法が1900と仮定すると、最低天井高さは2276とでました。設計高さ2140からは136高いことになっています。梁の組み方で大工が上げたのか、外部の鴨居枠の水切り鉄板の収まりで上げたのでしょうか。いずれにせよ現場でこうなったと言うことですね。
※1より
hoto by mirutake 2011.10
外壁から飛び出している敷居幅が200くらい、バルコニーが500くらいとして、700の持ち出しではないかと思います。木造ではそんなに持ち出したくないので、出幅の少ないバルコニーとなったのでしょうか。いややっぱり『室内にいながら、戸外にいるような気がするだろう』※3と言う吉村の言葉は、居間にとりついた丸太手摺りが、居間がバルコニーだよと言っているような気がしてしょうがないのです。
鬱蒼と茂る木々と断面図を合成

居間から林を見る人の立ち位置によって変わる意識が想像できるでしょうか?。座る人は室内にあって、安定した意識が自在に樹間を浮遊する、狭いバルコニーに立ってしまった人の高所感はすごい感じがします。高所感や環境圧に耐えていることが想像できそうです。そして林の中にいる圧倒的な臨場感はすごいでしょうね。(手摺りがh750と言う低さです。時代を感じますね。現在はh1100でないと法的に許されませんが、個人住宅に規制しすぎですよね。)
吉村順三作品集 1978ー1991 吉村順三 単行本 新建築社 (1991/01) より
作品集の下巻を見ていると、住宅関係最後に「軽井沢の家G1990」として紹介されている。何故かこれらの図面だけで、写真は一枚もない。この作品集では異例の掲載仕方となっている。構成はほぼ同じで、左右反転プランになっていますね。屋上露台が無いだけで吉村「軽井沢の山荘」を一回り大きくしたという感じだ。平面図から見て行くと、最大間口7272が8181で909大きくなっている。居間14.2が17.9帖に、主寝室4.4が8.8帖。居間14.2から17.9帖に。

居間とバルコニーの関係、引き込み戸の使用は変わらない。バルコニーの奥行きは逆に500から400に100小さくなっている。このことの意味は書くまでもないでしょうか。居間から出ないで樹木をみる、浮遊意識の確実化=前進でしょうか。また食堂が南側に居間と一体になって、居間との広がり感が大きくなっている。しかしこれは食堂の開口部が居間と左右対象につくられている遊びのおもしろさがあるのでしょうが、樹木に向かって行く意識にとっては拡散として働くでしょう。「軽井沢の山荘」の集中する意識に向かう開口の開け方からは後退に思われます。
高さ関係に行きます。もういちいち上げませんが、一般の人が許容できるところまで大きく譲歩したという感じですね。「軽井沢の山荘」の高さ寸法は、自邸だからできる建築家の強烈な自己意識と言うことを、再度確認することになってますね。
アントニン・レーモンド自邸 1951竣工で、井上房一郎邸はその翌年に建てられる。了解を得てレーモンド自邸は実測され、居間+パティオ(食堂)+寝室が反転プランで井上邸として再現されました。ここの和室以降のプランは井上の設計になります。レーモンド、オリジナルなシザーストラスのダイナミックで開放的な吹き抜け空間が、和風の雰囲気を持ちながら洋風の近代木造空間となっています。
[参考]
山荘に喫茶室をつくる 夏森龍之介(1)
山荘に喫茶室をつくる 夏森龍之介(2)
森の小屋に喫茶室をつくる 夏森龍之介(3)
(320) -建築家・吉村順三の仕事-(軽井沢の山荘) - YouTube
吉村順三 - Wikipedia
吉村 順三は、日本の建築家。東京藝術大学名誉教授。(ウィキペディア)
生まれ:1908年9月7日, 東京都
死去:1997年4月11日, 東京都
書籍:小さな森の家: 軽井沢山荘物語、他
出身校:東京美術学校
受賞:日本建築学会賞作品賞(1956年); 日本芸術院賞(1975年); 毎日芸術賞(1989年)
建築物:軽井沢の山荘(吉村山荘); 皇居新宮殿基本設計奈良国立博物館八ケ岳高原音楽堂。
吉村順三の軽井沢の山荘の軸組模型と自信設計の椅子とスケッチ

吉村順三の軽井沢の山荘の軸組模型。

吉村順三の軽井沢の山荘の軸組模型。

吉村順三の軽井沢の山荘の軸組模型。

吉村順三の軽井沢の山荘の軸組模型。

吉村順三の軽井沢の山荘の軸組模型。

吉村順三の軽井沢の山荘の軸組模型。

吉村順三の軽井沢の山荘で使った自信設計の椅子。

吉村順三のスケッチ。

吉村順三のスケッチ。

吉村順三のスケッチ。

吉村順三のスケッチ。
[資料]
├
├(320) -建築家・吉村順三の仕事-(軽井沢の山荘) - YouTube
├
├吉村順三 脇田山荘 #junzoyoshimura #吉村順三 #脇田邸 (youtube.com)
├
├軽井沢の山荘2 (mirutake.sakura.ne.jp)├
├
├吉村順三の軽井沢の山荘の軸組模型とスケッチ : 日日日影新聞 (nichi nichi hikage shinbun)
├
├吉村順三展/八ヶ岳音楽堂/曽我部昌史教授 河内由希氏 三井田昂太 インタビュー
├
├
├上高地夏至のころ 執筆 甲斐鐵太郎
├
├上高地 晩夏
├
├私と上高地-その6-上高地賛歌 八ヶ岳登山で山の自然に魅了される 甲斐鐵太郎
├
├上高地 錦秋の梓川の流れ 甲斐鐵太郞
├
├散りゆく唐松林の向こうに銀嶺の穂高連峰が輝いていた 甲斐鐵太郞
├私と上高地-その6-上高地賛歌 八ヶ岳登山で山の自然に魅了される 甲斐鐵太郎
├
├私と上高地-その5-格好いい山男は女に好かれる 山で英雄になった男の物語 執筆 甲斐鐵太郎
├
├私と上高地-その4-槍ヶ岳・穂高岳登山と上高地 執筆 甲斐鐵太郎
├
├私と上高地-その3-上高地帝国ホテルと大正池界隈を歩く 執筆 甲斐鐵太郎
├
├私と上高地-その2-登山とロマンチズムそして感傷主義 執筆 甲斐鐵太郎
├
├上高地讃歌-その1-私の上高地そして小梨平 執筆 甲斐鐵太郎
├
├標高3000mに集まった人々 人それぞれの人生が垣間見える 執筆 甲斐鐵太郎
├
├メルヘン 森と泉がおりなす世界 青木湖 執筆 甲斐鐵太郎
├
├北アルプス 廃道寸前の伊東新道を湯俣温泉に下った1979年夏 執筆 甲斐鐵太郎
├
├湯俣温泉「晴嵐荘」の都はるみとオーディオ 執筆 甲斐鐵太郎
├
├
├
├上高地夏至のころ 執筆 甲斐鐵太郎
├
├上高地 晩夏
├
├私と上高地-その6-上高地賛歌 八ヶ岳登山で山の自然に魅了される 甲斐鐵太郎
├
├上高地 錦秋の梓川の流れ 甲斐鐵太郞
├
├散りゆく唐松林の向こうに銀嶺の穂高連峰が輝いていた 甲斐鐵太郞
├私と上高地-その6-上高地賛歌 八ヶ岳登山で山の自然に魅了される 甲斐鐵太郎
├
├私と上高地-その5-格好いい山男は女に好かれる 山で英雄になった男の物語 執筆 甲斐鐵太郎
├
├私と上高地-その4-槍ヶ岳・穂高岳登山と上高地 執筆 甲斐鐵太郎
├
├私と上高地-その3-上高地帝国ホテルと大正池界隈を歩く 執筆 甲斐鐵太郎
├
├私と上高地-その2-登山とロマンチズムそして感傷主義 執筆 甲斐鐵太郎
├
├上高地讃歌-その1-私の上高地そして小梨平 執筆 甲斐鐵太郎
├
├標高3000mに集まった人々 人それぞれの人生が垣間見える 執筆 甲斐鐵太郎
├
├メルヘン 森と泉がおりなす世界 青木湖 執筆 甲斐鐵太郎
├
├北アルプス 廃道寸前の伊東新道を湯俣温泉に下った1979年夏 執筆 甲斐鐵太郎
├
├湯俣温泉「晴嵐荘」の都はるみとオーディオ 執筆 甲斐鐵太郎
├
├
├
├豊田の立体最小限住宅(Minimum House in Toyota)|川島範久建築設計事務所 【新建築住宅特集】
├巨匠が生涯の拠り所とした「生活最小限住宅」


コルビュジエさんの小屋は、本当に「小屋」という感じです。世間で言うタイニーハウスぐらいの寸法で、どれぐらいの寸法かというと、長辺方向は4486mmでざっくり4.5m、短辺方向が3758mmで3.75mとなっています。コルビュジエの日本人弟子の筆頭と言えば前川國男先生ですが、前川先生が言うには、「これは単なる最小限住宅ということじゃないんだ」ということです。これを1つのユニット・核にして展開していくことによって、大きな空間を作っていくことを目指しているとおっしゃっています。今、平屋の小さなお家を考えられているシニア夫婦なんかも、例えばこの小屋を最小限住宅としてここから展開していくという形のネタとして使っていただいても非常に面白いかなと思いました。
├
├簡素にして豊さを求めた「カップ・マルタンの休憩小屋」 |東京の狭小住宅の間取り・3階建て【K⁺A】

コルビュジエの休暇小屋
簡素にして豊さを求めた「カップ・マルタンの休憩小屋」2023.04.06
エグゼクティブデザイナーをしております千北 正(チギタ タダシ)です。久しぶりのブログ更新です。うららかな心地よい日差しを感じる季節となりました。そこで今回は、フランスの建築家ル・コルビュジエ(1887~1965スイス生まれ:日本では、上野にある国立西洋美術館を建築したことで有名)の終の棲家となったコート・ダジュール(モナコに近接するリゾート地)に建つ人間本来の暮らしが詰め込まれている「カップ・マルタンの休暇小屋」をご紹介します。
以前のブログで、ル・コルビュジエが36歳のときに両親のためにスイスのレマン湖畔に建てた平屋住宅「小さな家(母の家)」(1924年竣工)を紹介させて頂きました。そこで今回はル・コルビュジエ65歳の円熟期に完成させた休憩小屋(1952年竣工)の紹介です。余談ですが、この休憩小屋の竣工時期(1952昭和27年)に私は生まれました(笑)。その世界一小さな世界遺産(2016年認定)と言われる休憩小屋からはたいへん学ぶことが多く、質素で粗末な材料でつくられたこの小屋には、空間の本質をみることができます。
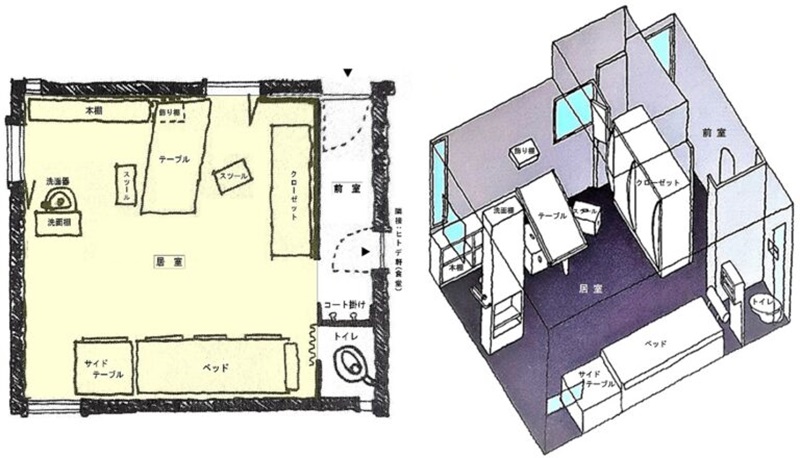
この休憩小屋は究極の狭小住宅とでもいえる小さな家で、居室は二間四方のわずか8畳ほどのワンルームです。天井高は2.26mで、現在の一般の住宅からするとちょっと低めかもしれません。しかしその寸法には理由があるのです。
「質素で簡易的」であるこのバナキュラー(Vernacular:その土地に根付いた)な小さな休憩小屋は、波型石綿スレート葺きの片流れ屋根で、外壁の仕上げは地元の廃材となった木材の太鼓落としで生じた端材を張り合わせた一見ログハウスに見える簡素な休憩小屋です。室内の天井と壁面は合板で、床はモミの木のフローリングOPとなっています。家具類は耐久性に富み、比較的安価で木目が美しいオーク材を使用。ベッド、テーブル、スツール(背もたれと肘掛けがない簡易的な椅子)やクローゼット、等で必要最小限に皮膚環境の延長として配置構成さています。とくに手足が触れるであろう家具や建具の取っ手などには、ほとんどR加工が施されています。住設は洗面器と便器がむき出しで台所はありません。この小さな小屋は、ヒトデ軒(食堂)と隣接しているからです。さらに小屋周りの植栽は、イナゴマメやアロエ等が植え込まれています。
さらにこの休憩小屋はただの小屋と違い、「実験小屋」とも称されています。そのわけは、コルビュジエ自身が提唱した「モデュロール」というヒューマン・スケール(身体寸法)と美的プロポーションの典型と言われている「黄金比」を融合させた独自の寸法体系を、この小さな小屋を設計する際に適用しているのです。同年(1952年)に完成したマルセイユのユニテ・ダビタシオンは、最小限空間をモデュロール(黄金尺)で構成した住居単位として、それらを集合・累積し、大規模な集合住宅に適用しています。ただしこの休憩小屋では、「モデュロール」を基本としながらも厳格に拘束することなく、窓の高さなどでは、生活行為からの自分の目線の高さにあわせ、現場で変更もしているのです。このことは、モデュロールが必ずしもコルビュジエにとって絶対的寸法ではなく、根底には理論より現場での「自らの感性」を優先する思想があったからにほかありません。
さらに私が思うコルビュジェの「休憩小屋」の魅力はやはりロケーションにあります。有名な観光エリアからは外れていますが、小屋から眺める南仏の海は雑念を一瞬で吹き飛ばしてしまうほどの美しさなのです。パリの自宅兼設計事務所のアパルトマンで忙しい毎日を送っていたル・コルビュジエが、日常を忘れるためにこの地を選んだのも納得がいきます。さらに、この地はコルビュジェの先祖や妻イヴォンヌ・ガリの生れ古郷でもありました。そのように、様々な縁の深い地域であり、素のままの自分でいられる唯一の心の拠点を設けた生涯の拠り所であったことに間違いありません。
コルビュジエは南仏カップ・マルタンの地に終の棲家となる心の拠点を設け、時間をかけてさまざまな実験的な取り組みをしていました。母親の胎内にも似た安心できる内部空間に心は解放され、建築への啓示を受ける一方、さまざまな思考をしながら文字どおり身も心も素裸の一人の人間として「修行僧のような」時間を過ごしていたことと思います。
料理上手な妻イヴォンヌ・ガリへの誕生日プレゼントだったこのキャバノン(CABANON:フランス語で「休暇小屋」)を、彼は心の拠り所として生涯愛し続けました。そして、今でもそのその息遣いをこの「休憩小屋」から感じとることができます。1957年の秋、最愛の妻イヴォンヌに先立たれ、その二年後には最愛の母が他界。そしてその8年後1965年に休憩小屋のカベ海岸で遊泳中のコルビュジエは、78歳で不慮の死を遂げたのです。この偉大な建築家ル・コルビュジエは生涯ここに通いつめ、最期のときを過ごし、お墓までつくり、今もキャバノンの近くで妻と一緒に眠っています。
さて、今回紹介させて頂きました、カップ・マルタンのキャバノン(休憩小屋)は、ブランドエリアでもなく自分たちが気に入った場所に、広くもなく、高価な素材を使わずとも、工夫次第で豊かな暮らしができることを証明してくれています。コルビュジエの残した言葉に「家は生活の宝石箱でなければならない」とあります。今回のキャバノンでは、このことを教えてくれたように感じます。
├
├
├
├
├
├
├
├
├
├
├どうやって使うの?と、ちょっとだけ「技術革新の経験」研究のこと。福禄貯炭式石炭ストーブ@「北海道開拓の村」 | 水戸市大場町・島地区農地・水・環境保全会便り




山葵
2021年5月7日 5:56 PM
貯炭部分の下から燃える ストーブです。そこから煙突方向に向かって燃焼炎が噴出していきます。煙突までの空間は2次燃焼室です。最上部の投入口からも空気を吸うので貯炭部は炎上しない設計です。
ルンペンストーブといわれるタイプは貯炭部の最上部から線香のように下に向かって燃え移って行く方式です。
釧路産の石炭販売は一昨年に終了しました。石炭ストーブを使うなら輸入炭を高額で購入するほかないようです。これからはエキシビジョン燃焼とでもいいましょうか・・・残念な話です。札幌に福禄ストーブ発祥の地があるはずです。今は公園になっていてストーブのかわいいオブジェが複数鎮座していたと思います。もうこうなったらバーベキュー用の豆炭でも入れて雰囲気だけでも楽しんでみたいです。焚き火や薪ストーブの扱いが上手い奴って大体、テストでハイスコアを取るのが苦手だったりします。が、要領や根回しや空気読みは得意で大人になって再会すると意外な人物が美味しいポジションにいます。
トライ→エラー→フィードバック→トライのサイクルの次元が違うというか。誰が言ったか、焚き火は人生の全てを教えてくれる。秀逸な名言です。空気読めなきゃ寒い思いしますもの。人生も焚き火も一緒です。
福禄石炭ストーブの製品開発について In Regard to the development of Fukuroku Coal Stoves
宇田 哲雄
https://sts.kahaku.go.jp/tokutei/pdfs/0417.pdf
福禄石炭ストーブの製品開発についてIn Regard to the development of Fukuroku Coal Stoves宇田哲雄*
UDA Tetsuo 福禄石炭ストーブ、暖房具、鋳物製品、型式・年式、開発・年式変更・改造、 Fukuroku coal stoves,a heating
utensil, casting, styles・yearly type, development・model change・improvement
要旨大正時代末から昭和40年代に、わが国の生活をささえ、生活の近代化に貢献した暖防具であり、工業製品の先駆けともいえる鋳物製石炭ストーブについて、そのトップ・メーカーであった株式会社
福禄の石炭ストーブの製品開発・年式変更・改造の歴史を概観し、そこに、優れた性能の追求と、新たな地域や階層への普及、日本古来の生活様式への留意、また生産における合理化といった志向のあることを指摘し、また併せて今後の調査研究の課題を指摘する。
1.はじめに鋳物製石炭ストーブは、北海道開拓をひとつの契機として西洋から移入され、日本のメーカーによって開発・改良され普及し、大正末期から昭和40年代にかけて、わが国の重要な暖房具であった。それは、ある面で煮炊きや家族の座順といった日本古来の慣習を継承しながらも、住宅や居住生活の変化や公共的施設の増加など、社会の近代化に伴って普及していったのである1)。また、石炭ストーブは、それまでの多くの家内制手工業製品ではなく、近代的工場による大量生産製品の先駆けであり、とくに昭和20~30年頃には全国シェアの80%を埼玉県川口市が生産し、川口鋳物工業の代表的製品であった。現在、そのトップ・メーカーであった株式会社福禄の製造してきた「福禄石炭ストーブ・コレクション及び関連資料」
(79台50枚1冊)が、市指定有形文化財(歴史資料)となっている。筆者は、かつて福禄石炭ストーブの歴史と型式を紹介し、これの民具学的研究意義を論じた2)。
一方、他社製ストーブの中にも、福禄と同じような形態のストーブが多く製造されてきたことから、本稿では、改めて当社石炭ストーブの型式と開発・改造の歴史の概要を整理することにより、わが国初期の工業製品における技術進展の一端を見ていく。
2.㈱福禄川口工場とその製品開発システム表1を参照していただきたい。大正13年(1924)にわが国最初の貯炭式ストーブの発明に成功した4代目鈴木豊三郎は、発注先を探すため、設計図を携え各地の鋳物産地を調査し、長年の日用品鋳物生
産で培われた薄肉鋳造技術と、工場数が多く東京に近いことから、埼玉県川口の鋳物工場への発注を決定した3)。翌年は、二つの鋳物工場を直属にして組
立工場を直営とし、昭和10年(1935)には、ストーブ専門の鋳物工場を設立し、一貫量産体制を確立した4)。後に機械込めを手込めに戻すなど変化はあるが、こうして㈱福禄川口工場の生産体制が整った。最盛期であった昭和30年代頃の工場は、3つの建物があり、第1工場には、2階に事務所、1階に「仕上場」と「機械場」を配置し、第2工場を「鋳
物場」、第3工場を倉庫にしていた。そこでは、鋳型づくり・溶解および注湯(第2工場)→仕上げ・組 立て・検査・(ナオシ)・塗装・梱包(第1工場)→出荷(第3工場)の工程でストーブを生産していた。そして、鋳物屋(胴屋・中物屋・小物屋)・割り屋・吹き前・雑役・組立工・検査係・ナオシ屋・塗り屋荷造り屋などの職工たちが、それぞれの工程をそれぞれ固定された場所で作業していたのである。
福禄の製品開発および改造には、「設計」と「タネ(金型)づくり」という工程があり、福禄工場専門の設計屋・木型屋・タネ屋がおこなっていた。具体的には、設計・木型づくり・タネ(金型)づくり・タネの仕上げ・試作・手直しという工程でストーブ*川口市立文化財センター
主査*Center of The Culutural Properties of KawaguchiーCity Chief 表1.福禄川口工場ストーブ関係年表.5)年代事柄大正13年(1924)大正14年(1925)大正15年(1926)昭和3年(1928)昭和5年(1930)昭和6年(1931)昭和9年(1934)昭和10年(1935)昭和13年(1938)
○4代目鈴木豊三郎が、わが国最初の貯炭式ストーブの開発に成功。 ○4月、福禄商会開業。 ○北海道の高額所得者の20%を対象として、1号・2号・3号併せて20、000台のストーブを、川口の小林鋳工場に発注した。※小林鋳工場は、町内13工場に下請けさせた。
○販売については、代理店・特約店を選定し、これを通じ販売した。 ○胴体中央部に亀裂が生じたとのクレームから、一貫した生産体制を目指し、椎橋宗次郎・永瀬嘉兵衛の二工場を直属とし、加工組立工場を設立した。
○損傷を生じた胴体にストライプのリブを鋳出し、強固にした。 ○炊事兼用型1号・2号を開発した。 ○樺太島警察展覧会にストーブを出品した。 ※ストーブ・メーカーが次々創業。
○鋳造用金型が3年間程の使用で磨耗することから、フルモデルチェンジを実施、零号、丸1号、角型1号・2号・3号・4号とした。 ○日本間用として「坐り福禄」、炊事兼用の改良型として「茶の間福
禄」を開発した。 ○角型のモデルチェンジを実施し、消費節約・簡単な機能を目的に「大衆福禄」を開発した。 ○組立工場移転とともに、電気鍍金工場を設立した。
○ストーブ需要増加に伴い、一貫量 産体制を整えた世界最先端のストーブ専門鋳造工場を設立した。 ○上流事務所や料理屋向けの角型の豪華型「福禄一〇一~一〇五号」、宝型(半貯炭式)を開発。
○職工養成のため、福禄青年学校を設立した。昭和14年(1939)昭和16年(1941)昭和17年(1942)昭和21年(1946)昭和23年(1948)昭和24年(1949)昭和26年(1951)昭和27年(1952)昭和29年昭和31年昭和32年(1957)昭和33年(1958)昭和36年昭和37年昭和39年(1964)昭和41年(1966)昭和44年(1969)平成4年(1992)
○軍需生産品管理のため、陸海軍の管理下に入る。 ○省資材、実質本位の「東亜型」ストーブを開発した。 ○資本金30万円で、株式会社福禄に組織変更した。
○商工省告示第1号により、規格ストーブに選定される。 ○戦後ただちに本来のストーブ製 造に転換し、3月には天皇陛下に工場を行幸・視察される。
○石炭事情好転により、当時の燃料に最適の胴張型円型ストーブを開発・販売した。 ※この頃から、川口が全国の石炭ストーブ生産の80%をしめる。 ○長野県平和博覧会にストーブを出品した。
○高松宮様が工場を視察なさる。 ○神奈川県主催第3回東日本優良品交流展示会に出品、金賞受賞。 ○資本金を1,500万円に増資。 ○資本金を2,000万円に増資。
○角型のデラックス型「箱型」を開 発した。 ○この頃、角型炊事2号を中心に年間4万本のストーブを販売する。 ○前社長死去に伴い、5代目鈴木豊
三郎社長に就任。 ○コークスストーブを開発した。 ○鉄道科学大博覧会で表彰される。 ○東京オリンピック大会を記念し、 FH型ストーブを開発した。
○鋳造工場を鉄骨に改築した。 ※この頃石油ストーブ登場により、徐々に石炭ストーブ需要が減少。 ○川口市教育委員会より、市有形民俗文化財「福禄石炭ストーブのコレクション付ポスター」(44種46台13枚)の指定を受ける。
○3月、福禄川口工場が閉鎖され、 福禄ストーブの生産が停止した。の金型や木枠が製作され、工場の大量生産に出された。設計屋は、図面を引いて木製のストーブ考案モデルを作成し、木型屋は、タネの木型と木枠などを作成し、タネ屋は、タネ場で大量生産用の金型をつくったのである6)。それによって開発されてきた福
禄の主要な型式ストーブは、図1のとおりである。図1.福禄石炭ストーブの主要な型式(※図は2号)7) 3.福禄石炭ストーブの開発・改造ここでは、福禄石炭ストーブの開発と改造の歴史を見ていく。表2は、いくつもの部品図解表やカタログから、各型式のストーブの開発・年式変更(●)と部分改造(▲)を記したものである。
福禄のストーブは、角型・箱型・角型炊事・円型・宝型などの型式に、大きさ(適応する暖房空間の広さ)によって、0号(6畳間)・01号(8畳間)・
1号(家庭)・2号(事務室)・3号(大広間)・4号・ 5号(工場等)などの規格を設定している。これら各型式のストーブについて、大きな改造とくに胴や外観できる部品を変更した時などには新たな年式を用い、例えば「角型1号50年式」や「角型炊事2号61式」と称している。また、年式の変更はしないが、部分的な改造も多い。このように見ると、株式会社福禄は、創業から生産停止までの68年間で、実に157種類のストーブを生産してきたのである。しかし、表2から明らかなように、福禄石炭ストーブの基本形は、①角型や箱型などの貯炭式ストーブ、②炊事兼用ストーブ、③宝型や東亜型の半貯炭式ストーブ、④円型や寸胴などの投込式ストーブ、
⑤その他の5パターンであり、157種類はそれらのバリエイションと捉えることができるのである。次に、表1も参考にしながら、各型式について具体的に見ていく。まず、大正14年(1925)の最初の貯炭式ストーブ(1号・2号・3号)は、札幌市の高額所得者の20%にむけて生産されたものであるが、大正8年(1919)に日本に入ったドイツのユンケルストーブを参考につくられたと言われており、内部構造は若干異なるものの、外見は似ている(図2.3参照)。しかし、このストーブは、使用中燃焼部中央に亀裂が入ったとのクレームがあり、翌年には、早々とモデル・チェンジを行っている。胴の燃焼部をより強固にし、併せて放熱効果をあげるため、ストライプのリブを鋳出した。このリブは、縦になり横になり、その後につくられた多くのストーブに継承され、デザイン化していったと見られる(図1参照)。そして、このタイプは、昭和3年式から「角型」と称していき、昭和6年(1931)にもモデル・チェンジとともに、炭投入口を二重蓋にし、風窓を円形にするなどの改造を行っている。次に、大正15年(1926)には、炊事兼用ストーブ1号・2号を開発している。これは、日本古来の囲炉裏に似せて、暖をとりながら鍋を煮たりできるもので、家庭むけに開発されたものである。そして、このタイプは終始一貫して製造され、とくに最盛期である昭和30年代には、角型炊事0号・1号・2号の3タイプになり、最も多く生産・販売されたストーブである。昭和3年(1928)には、零号が6畳
間用、丸1号が8畳間用として家庭むけに開発され、また坐り福禄(昭和5年)や豆福禄(昭和12年)は、火鉢に似せて開発したとされており、ストーブの普及は家屋の近代化と関連しているものの、
福禄は、日本の生活様式にも留意して開発をしていったのである。昭和6年には、「消費節約・簡単な機能」をモットーに大衆福禄が開発された。これは、より広く一般図2.ユンケルストーブ9)図3.2号、3号(大正14)
表2.福禄石炭ストーブ製造年代表8) ※ ●開発・年式変更、▲部分改造、→名称変更大14 1925大15 1926昭2 1927昭3 1928昭4
1929昭5 1930昭6 1931昭7 1932昭8 1933昭9 1934昭10 1935昭11 1936昭12 1937昭13 1938昭14
1939昭15 1940昭16 1941昭17 1942昭24 1949昭25 1950昭26 1951昭27 1952昭28 1953昭29
1954昭30 1955昭31 1956昭32 1957昭33 1958昭34 1959昭35 1960昭36 1961昭37 1962昭38
1963昭39 1964昭40 1965昭43 1968 【貯炭式】 1号→角型1号● ● →● ● ● ● ▲ ● ● ● ▲ ● 2号→角型2号●
● →● ● ● ● ▲ ● ▲ ● ▲ ● ▲ ● 3号→角型3号● ● →● ● ● ● ● ▲ ● ▲ ● ▲ ▲ ● 特大→角型4号●
→● ● ● 零号● ● ● 丸1号● ● ●坐り福禄●大衆福禄中型●大衆福禄大型● 福禄一〇一号● ● ● 福禄一〇二号● ● ● 福禄一〇三号●
● 福禄105号・豪華型● 豆福禄● 角型0号● ▲ ▲ ● ▲ ● 角丸型1号→角型01号● ▲ ▲●→→● ● ▲ ● 箱型0号● ▲ ▲
▲ 箱型1号● ● 箱型3号● ● ● 箱型5号● ● ● FH型1号FH型2号● ● FH型3号● ● 【貯炭式炊事兼用】炊事兼用1号●炊事兼用2号●
茶の間福禄●新茶間福禄一号●新茶間福禄二号●炊事福禄● 角型炊事→角型炊事2号● ● ● ● ●●→→●● ● ● ● ▲ ▲ 角型炊事1号→角型炊事0号●→→●
● ● ▲ ▲ 角型炊事一号● ● ▲ ▲ 【半貯炭式】宝福禄小型●宝福禄大型●宝型1号●宝型2号●新宝2号→宝型2号● ▲ ● ▲ ▲→→●宝型3号●
● ● ▲ ▲ ● ● ●宝型4号●東亜型東亜型1号●東亜型2号●東亜型3号●東亜型炊事1号● ●東亜型炊事2号● 【投込式】寸胴 尺● ●寸胴 九寸●
●円型(大)● ● ▲円型(中)● ● ▲円型炊事● ● ● ● ● ●円型1号● ● ● ▲ ▲ ▲円型2号● ● ● ▲ ▲円型3号● ●
● ▲ ▲円型5号● ● ▲ ▲ 蛸型尺五● ● 【その他】 粉炭福禄● 粉炭ストーブコークス用1号●コークス用→コークス用2号●→→▲大衆を対象として設計したのであろう。昭和10年(1935)に開発された宝型は、半貯炭式といって、
石炭を貯える貯炭部が小さく、北海道ほど長時間寒さが続かない東北や北陸地方むけに開発されたと見られ、後に青森県の指定ストーブとなった。この年は、株式会社福禄が、鋳造工場を設立し、一貫量産体制を確立した年である。福禄一〇一号・一〇二号・
一〇三号は角型の豪華版で、とくに福禄一〇五号は豪華型と称され、高級料亭などに販売された。このタイプは、アール・デコと見られる装飾もなされ、 福禄のストーブ製造の歴史の中で最もデザインに凝ったストーブである(図4参照)。東亜型は、戦時中の統制下において、省資材・軽量・高熱効率から、商工省告示第1号により製造の指定をうけたストーブである。これは、川口鋳物の伝統を受け継いだ福
禄の薄肉鋳物技術が評価されたのである。このように株式会社福禄の戦前期における製品開 発には、性能の追求、地域や階層、日本古来の生活様式への志向性を伺うことができる。戦後は、石炭ストーブの最盛期であり、角型炊事を主流として、角型のデラックス版である箱型やFH型が開発された。また、本来貯炭式ストーブのトップ・メーカーであるが、明治期から他メーカーでつくられてきた胴張型(円型)の生産に力を入れ、本州の学校などに販売された。図4.福禄一〇五号「豪華型」
4.年式変更と部品の共有ここでは、実際の年式変更について、部品の共有という観点から見ていく。まず表2によると、戦前期は、一部のストーブを除いて、金型が磨耗する3年に1度のモデル・チェンジが多いが、戦後とくに昭和20年代から30年代の最盛期には、生産台数が増加したためであろう、より頻繁に年式変更や改造がなされている。とくに最も多く生産された角型炊事2号は、ほぼ毎年年式変更がなされている。
表3は、戦前期の角型1号(昭和9年式)と戦後かなり多く生産・販売された角型炊事2号(61式)について、その専用部品と兼用部品を示したもので角型1号(昭和9年式)専用部品(17部品)
表3.福禄石炭ストーブ部品兼用状況表10)型式専・兼部品の名称 胴、上蓋(下、上覆、ツマミ)、笠、敷台、櫛形ロストル、船形ロストル、台輪、 落蓋、横窓下、横窓、灰皿、
上風窓、下風窓、上ヒネリ、 下ヒネリ※25部品兼用部品(8部品) 中蓋(6年式と兼)、後蓋(6年式)、丸蓋(6年式)、上扉(6年式)、下扉(6年式)、曲円筒(6年式)、デレッキ(6年式)、灰取函(3・6年式)
角型炊事 2号(61式) ※29部品専用部品(12部品) 上胴(新規作成)、下胴(新規作成)、敷台(元56年式)、船形ロストル(元58年式)、上扉(元54年式)、
下扉(元54年式)、落蓋(元58年式)、釜落し(元58年式)、釜鍔(元58年式)、 釜掛胴(元59年式)、調節板(元59年式)、継ぎ輪(元59年式)兼用部品(17部品)
笠(角1・61式と兼)、中蓋 (角0・角01・角1・角炊0・角炊1の61式と兼)、 上蓋(角炊・54年式と兼)、櫛型ロストル(角炊・57年式と兼)、立型ロストル(角炊・54年式と兼)、引蓋(角炊・54年式と兼)、上風窓(角
1・50年式と兼)、下風窓(角 1・50年式と兼)、瓶掛2コ(角炊・51年式と兼)、無双(65から角3・56年式と兼)、裏板(65から角1・
65式と兼)、錠前(上・下)、灰取函、デレッキ、マーク(角2・角3・新宝2と兼)ある。角型1号(昭和9年式)は、鋳物等でつくられた25の部品が組み立てられてできあがっているが、そのうち17の部品が新しく設計されつくられたもので、他の8つの部品は、年式変更前の昭和6年式あるいは昭和3年式のストーブと同じ部品が使われている。これに対して、最盛期で年間4、500本以上も販売されたという角型炊事2号(61式)は、29の部品によって構成されているが、専用部品は12で、半数以上の17部品が共有部品となっている。しかも、専用部品のうち、このたび新たにつくられた部品はボデイーである上胴と下胴のみで、それ以外の10の部品は、かつて昭和54年式・56年式・
58式・59式のストーブで使用していた部品を転 用したものである。また、兼用部品は、角型炊事(5 4年式・57年式)との兼用だけでなく、別の型式である角型1号(50年式)とも兼用がはかられている。中でもとくに、中蓋は、角型0号・角型01号・角型1号・角型炊事0号・角型炊事1号の61式という6つのストーブで共有されている。つまり、部品の共有化は、戦前からなされてはいたが、戦後最盛期になるとますます多くの部品共有化がはかられるようになった。つまり、年式変更や改造は、ひとつには部品の共有化という生産上の合理化を志向しているのである。この点については、今後ますます検証していきたい。
5.まとめ以上のように、大正末期から昭和40年代における、福禄石炭ストーブの製品開発や年式変更の歴史と内容について概観してきた。それは、基本的な型にそれぞれが年式変更を行い、しかも戦後の最盛期には頻繁に年式変更を行ってきたことから、実に1
57種類ものストーブを生産してきたと言える。そして、その開発や改造において、株式会社福禄が、優れた性能の追求、新たな地域や階層への普及、日本古来の生活様式への留意、部品の共有化という生
産上の合理化を目指してきたのである。今後は、さらに技術革新を探るためには、製品開 発や年式変更、部分的改造の様相について、とくに共有部品化に留意しながら、多くの事例を詳細に調査・検討していく必要がある。また、今ひとつは、当時の宣伝用ポスターやカタログなども含め、鋳物
製石炭ストーブの意匠、つまり工業デザインという観点からの調査研究も重要と考えている。注1)宇田哲雄「ストーブの生産と普及―近現代暖房具研究にむけて―」『民具研究』第122号2000年2)宇田哲雄「福禄石炭ストーブ研究序説」『民具研究』第
119号1999年3)鈴木寅夫「福禄ストーブの歩み」 『川口史林』第3号1969年4)鈴木寅夫「民俗資料川口市指定文化財フクロクストーブコレクション叙説」『川口史林』
第23・24合併号1980年5)前掲3)、4)、および株式会社 福禄経歴書により作成6)川口市教育委員会『川口市民俗文化財調査報告書第5集―川口のストーブ生産―』
2000年7)福禄製品バンフレット(1968) 8)福禄部品図解表(1938・1963年)、パンフレット(1935・1968年)、カタログ(1952・1955・1958年)、ポスター(1954・1956・
1957・1959・1960・1962・1962・ 1963・1964年)により作成9)新穂栄蔵『ストーブ博物館』北海道大学図書刊行会1986年図5.角型炊事2号(61式)の部品図解
10)福禄部品図解表(1938年)等により作成(2008年9月27日原稿受理、2008年11月15日採用決定
├
├
├
├
├
├
├
├
├
├
├
├高市早苗氏、村山富市首相に「先の大戦、勝手に謝っては困る」1年生議員のときに追及(1994年)

1994年10月12日の衆院予算委員会で、自由改革連合を代表して高市早苗氏が質問に立ち、村山富市首相に対し、先の大戦について国民的議論がないまま侵略と認定することを批判。「勝手に代表して謝ってもらっちゃ困る」と厳しく追及した。村山首相は翌年、「植民地支配と侵略」への「心からのおわびの気持ち」を表明する首相談話を発表した。
├
├
├純喫茶エルマーナ: 社労士笠島正弘のあれこれ話そう
├古い田植え機を使う八ヶ岳山間地の水田 甲斐鐵太郎
├蓼科の山荘の10坪の喫茶室のこと 甲斐鐵太郎
├coffeeとエルマーナ 見ていた青春 若いころのこと-1- 夏森龍之介
├「coffeeとエルマーナ」 見ていた青春 若いころのこと-1- 夏森龍之介
├
├「The Very Thought Of You」大滝詠一&シリア・ポール
├
├(333) 泉谷しげる / イメージの詩 [Music Video] - YouTube
├
├
├山本潤子 愛の花
├
├山本潤子 歌を捧げて
├
├
夏森龍之介のエッセー
田渕義雄エッセーの紹介
TOPへ
├
├日本の国家公務員の機構を旧日本軍の将校機構(士官学校、兵学校、陸軍大学、海軍大学)と対比する
├
├計量計測データバンク ニュースの窓 目次
├
2025-07-15-news-321-materia-content-collection-of-metrology-databank-321-
「計量計測データバンク」サイトマップ
measure and measurement data bank of saite map